募集中
【大阪/西長堀】新なにわ沿いの角地テナントビル
アドーラブル南堀江
この物件の情報は「掲載日」時点の内容になります。
お探しの物件の最新の状況は以下ボタンよりお問い合わせお願いします。
お問い合わせ賃料¥416,000円
掲載日2026-02-07
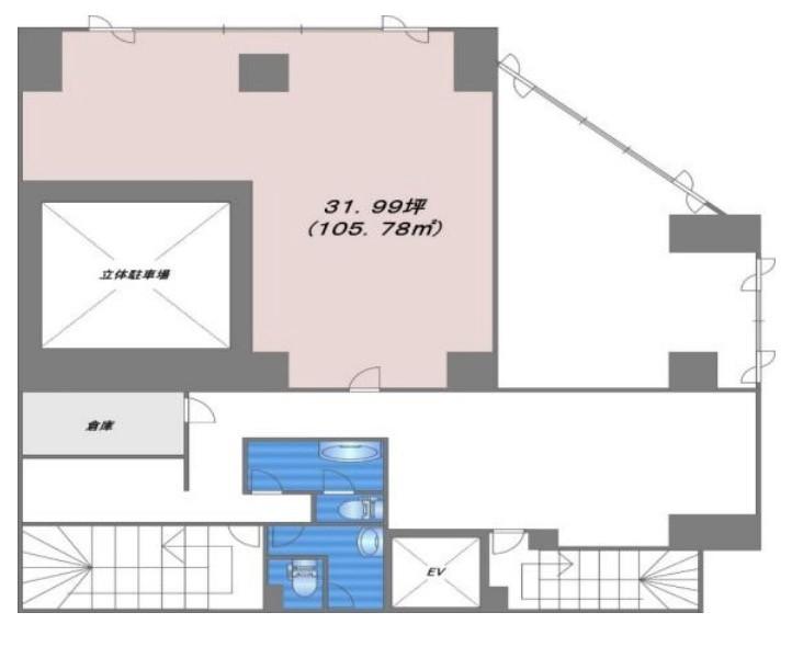
Floor plan
間取り
大阪市西区南堀江に位置する「アドーラブル南堀江」は、ビジネスや教室、ジム、美容室、ネイル、物販といった多様な業種に対応した魅力的な物件です。最寄り駅は大阪メトロ長堀鶴見緑地線の西長堀駅で、徒歩わずか1分という好立地にあります。交通の便が良く、通勤や集客に便利な環境です。
この物件は地上8階建ての2階部分に位置し、角部屋であるため、自然光が差し込みやすく、明るい空間が実現されています。また、1フロア1テナントの設計により、プライバシーが確保されている点も大きな魅力です。
大通りに面しており、駅からも近く視認性の高いビル
店舗・オフィスともにぴったりのテナントビルです。
平成築なので、共用部も比較的に綺麗で2019年にはビル全面改装済みです。
家賃は416,000円で、エレベーター完備のため、荷物の運搬や高齢者の方にも配慮されています。共用のトイレや給湯室も完備しており、業務の効率を高めるための設備が整っています。さらに、個別空調が完備されているため、快適な温度環境を維持でき、在宅勤務や長時間の業務にも適しています。
周辺環境も充実しており、南堀江エリアはおしゃれなカフェやショップが立ち並ぶ人気のエリアです。買い物や食事に困ることはなく、ビジネスの合間にリフレッシュすることができます。また、周辺には公園もあり、散策やリラックスの場としても利用可能です。
「アドーラブル南堀江」は、ビジネスの拠点としてだけでなく、快適な生活環境も提供します。特に在宅勤務が増えている現在、仕事とプライベートのバランスを取りやすい物件と言えるでしょう。多様な業種に対応できるため、起業や新たなビジネス展開を考えている方にもおすすめです。
ぜひ、この機会に「アドーラブル南堀江」をご検討ください。おしゃれな南堀江で、あなたのビジネスを成長させるための理想的な環境が整っています。
詳細については、お気軽にお問い合わせください。
この物件は地上8階建ての2階部分に位置し、角部屋であるため、自然光が差し込みやすく、明るい空間が実現されています。また、1フロア1テナントの設計により、プライバシーが確保されている点も大きな魅力です。
大通りに面しており、駅からも近く視認性の高いビル
店舗・オフィスともにぴったりのテナントビルです。
平成築なので、共用部も比較的に綺麗で2019年にはビル全面改装済みです。
家賃は416,000円で、エレベーター完備のため、荷物の運搬や高齢者の方にも配慮されています。共用のトイレや給湯室も完備しており、業務の効率を高めるための設備が整っています。さらに、個別空調が完備されているため、快適な温度環境を維持でき、在宅勤務や長時間の業務にも適しています。
周辺環境も充実しており、南堀江エリアはおしゃれなカフェやショップが立ち並ぶ人気のエリアです。買い物や食事に困ることはなく、ビジネスの合間にリフレッシュすることができます。また、周辺には公園もあり、散策やリラックスの場としても利用可能です。
「アドーラブル南堀江」は、ビジネスの拠点としてだけでなく、快適な生活環境も提供します。特に在宅勤務が増えている現在、仕事とプライベートのバランスを取りやすい物件と言えるでしょう。多様な業種に対応できるため、起業や新たなビジネス展開を考えている方にもおすすめです。
ぜひ、この機会に「アドーラブル南堀江」をご検討ください。おしゃれな南堀江で、あなたのビジネスを成長させるための理想的な環境が整っています。
詳細については、お気軽にお問い合わせください。
Equipment
設備キッチン
洗面設備
設備・サービス
個別空調
その他
エレベーター有・ トイレ 共用・ 給湯室 共用・ 24時間使用可能
Access
アクセス大阪メトロ長堀鶴見緑地線「西長堀」駅まで 徒歩1分
大阪メトロ千日前線「桜川」駅まで 徒歩6分
Property description
物件概要所在地
大阪府大阪市西区南堀江3丁目12-17
賃料
416,000円
共益費・管理費
64,000円
敷礼
敷金567,272円礼金1,248,000円(税別)
取引態様
仲介
専有面積
105.75㎡
建物
鉄骨鉄筋コンクリート8階建
築年数
37年
駐車場
バイク置場
駐輪場
電気代・水道代
実費
備考







