募集中
【大阪/天満橋】学習塾・医療関係等におすすめ◎
リップル天満橋ビル
この物件の情報は「掲載日」時点の内容になります。
お探しの物件の最新の状況は以下ボタンよりお問い合わせお願いします。
お問い合わせ賃料¥335,225円
掲載日2026-01-09
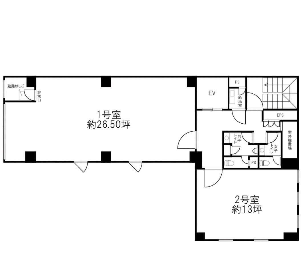
Floor plan
間取り
リップル天満橋ビルは、大阪府大阪市中央区大手前に位置する、便利なアクセスを誇るビルです。
最寄り駅は大阪メトロ谷町線天満橋駅から徒歩わずか1分の距離にあり、通勤や移動が非常にスムーズです。
周辺にはオフィス街が広がり、ビジネスを行うには理想的な環境が整っています。
この物件は地上10階建ての4階部分で、角部屋が特徴です。
335,225円の家賃で、さまざまな業種に対応可能なスペースとなっています。
事務所、シェアオフィス、教室、クリニックなど幅広い用途に対応できるため、多様なビジネスニーズに応えることができます。
特に、学習塾・医療関係等におすすめのテナントです。
ビル内の設備も充実しており、エレベーターを完備しているためアクセスが楽です。
また、共用のトイレや給湯室があり、快適に業務を行うことが可能です。
さらに、個別空調やOAフロアも導入されており、作業環境の快適さを大切にしています。24時間使用可能なため、フレキシブルな働き方を実現できます。
安全面にも配慮されており、個別セキュリティや機械警備が整っていますので、安心してビジネスを展開できます。
また、看板スペースも用意されていますので、事業の宣伝にも役立ちます。
周辺環境も魅力的です。
オフィス街として活気のある地域であり、飲食店やカフェ、コンビニエンスストアなどが豊富に揃っています。
仕事の合間に立ち寄れる便利な施設が多く、ランチやちょっとした買い物にも困りません。また、交通の便も良く、他の主要エリアへのアクセスも容易です。
在宅勤務やフリーランスの方にも適した環境が整っているため、リップル天満橋ビルは働く場所として非常におすすめです。
快適なオフィス環境を求める方、立地の良さを重視する方にとって、理想的な選択肢となるでしょう。
ぜひ、一度ご覧いただき、実際の雰囲気や利便性を体感してみてください。
あなたのビジネスの成長をサポートする、そんな場所がここにあります。
お問合せをお待ちしております。
最寄り駅は大阪メトロ谷町線天満橋駅から徒歩わずか1分の距離にあり、通勤や移動が非常にスムーズです。
周辺にはオフィス街が広がり、ビジネスを行うには理想的な環境が整っています。
この物件は地上10階建ての4階部分で、角部屋が特徴です。
335,225円の家賃で、さまざまな業種に対応可能なスペースとなっています。
事務所、シェアオフィス、教室、クリニックなど幅広い用途に対応できるため、多様なビジネスニーズに応えることができます。
特に、学習塾・医療関係等におすすめのテナントです。
ビル内の設備も充実しており、エレベーターを完備しているためアクセスが楽です。
また、共用のトイレや給湯室があり、快適に業務を行うことが可能です。
さらに、個別空調やOAフロアも導入されており、作業環境の快適さを大切にしています。24時間使用可能なため、フレキシブルな働き方を実現できます。
安全面にも配慮されており、個別セキュリティや機械警備が整っていますので、安心してビジネスを展開できます。
また、看板スペースも用意されていますので、事業の宣伝にも役立ちます。
周辺環境も魅力的です。
オフィス街として活気のある地域であり、飲食店やカフェ、コンビニエンスストアなどが豊富に揃っています。
仕事の合間に立ち寄れる便利な施設が多く、ランチやちょっとした買い物にも困りません。また、交通の便も良く、他の主要エリアへのアクセスも容易です。
在宅勤務やフリーランスの方にも適した環境が整っているため、リップル天満橋ビルは働く場所として非常におすすめです。
快適なオフィス環境を求める方、立地の良さを重視する方にとって、理想的な選択肢となるでしょう。
ぜひ、一度ご覧いただき、実際の雰囲気や利便性を体感してみてください。
あなたのビジネスの成長をサポートする、そんな場所がここにあります。
お問合せをお待ちしております。
Equipment
設備キッチン
洗面設備
設備・サービス
個別空調
その他
エレベーター有・ トイレ 共用・ 給湯室 共用・ 看板スペース・ OAフロア・ 24時間使用可能・ 個別セキュリティ・ 機械警備
Access
アクセス大阪メトロ谷町線「天満橋」駅まで 徒歩1分
京阪本線「天満橋」駅まで 徒歩4分
Property description
物件概要所在地
大阪府大阪市中央区大手前1丁目6-4
賃料
335,225円
共益費・管理費
87,450円
敷礼
敷金500,000円礼金550,000円(税別)
取引態様
仲介
専有面積
ー㎡
建物
鉄骨鉄筋コンクリート10階建
築年数
25年
駐車場
バイク置場
駐輪場
電気代・水道代
実費
備考
・保証会社 要加入










