募集中
【大阪/本町】せんば心斎橋商店街沿いの店舗・事務所
大晋第1ビル
この物件の情報は「掲載日」時点の内容になります。
お探しの物件の最新の状況は以下ボタンよりお問い合わせお願いします。
お問い合わせ賃料¥253,400円
掲載日2026-01-09
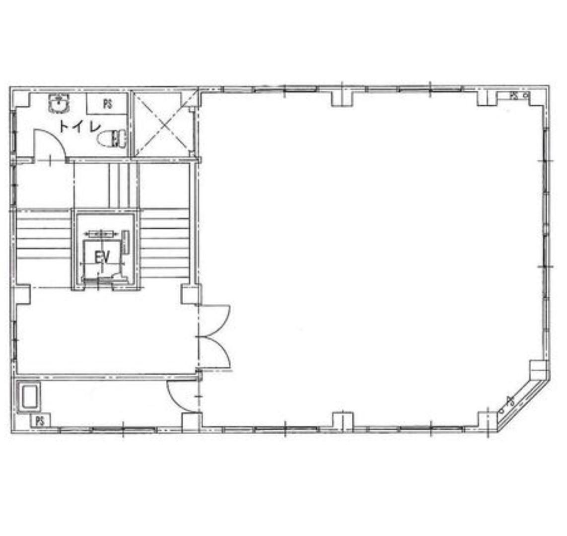
Floor plan
間取り
大阪市中央区の「大晋第1ビル」は、ビジネスやクリエイティブな活動をサポートする最適な環境を提供します。
最寄り駅は大阪メトロ御堂筋線の本町駅から徒歩わずか3分。
徒歩圏内は3沿線以上利用可能なため、非常に便利な立地。
アクセスの良さは、通勤や顧客との打ち合わせに非常に便利です。
ビルは6階建てで、今回ご紹介するのは3階のフロアです。
この物件の家賃は月額253,400円で、角部屋という特性を活かし、明るい自然光が差し込む快適な空間を実現しています。
オフィス街に位置しているため、周囲には多くのビジネスが集まっており、ネットワーキングやビジネスチャンスを広げるには絶好の立地です。
「大晋第1ビル」の特徴的な点は、1フロア1テナントの設計となっているため、プライバシーが保たれ、専用の空間で業務に集中することができます。
各テナントには専用のトイレと給湯室が完備されており、利便性が高いです。
また、エレベーターがあるため、上層階へのアクセスもスムーズです。
安全面にも配慮されており、個別セキュリティや機械警備が施されていますので、安心してビジネスに専念できます。
さらに、看板スペースも用意されているため、自社のブランディングや集客にも力を入れることができます。
周辺には飲食店やカフェも多く、ランチや打ち合わせ後のリフレッシュに便利です。
買い物の利便性も高く、商業施設が充実しているため、ビジネスだけでなく、生活面でも充実した環境が整っています。
また、在宅勤務が増えている現代において、オフィスとは別に集中できるスペースとしても利用可能です。
「大晋第1ビル」は、業種を問わず多様な用途に適した物件であり、事務所やシェアオフィス、教室、ネイルサロンなど、様々なビジネスシーンに対応しています。
この機会に、ぜひご検討ください。快適なオフィス環境が、あなたのビジネスを次のステージへと導くことでしょう。
興味をお持ちの方は、お気軽にお問い合わせください。
お待ちしております。
最寄り駅は大阪メトロ御堂筋線の本町駅から徒歩わずか3分。
徒歩圏内は3沿線以上利用可能なため、非常に便利な立地。
アクセスの良さは、通勤や顧客との打ち合わせに非常に便利です。
ビルは6階建てで、今回ご紹介するのは3階のフロアです。
この物件の家賃は月額253,400円で、角部屋という特性を活かし、明るい自然光が差し込む快適な空間を実現しています。
オフィス街に位置しているため、周囲には多くのビジネスが集まっており、ネットワーキングやビジネスチャンスを広げるには絶好の立地です。
「大晋第1ビル」の特徴的な点は、1フロア1テナントの設計となっているため、プライバシーが保たれ、専用の空間で業務に集中することができます。
各テナントには専用のトイレと給湯室が完備されており、利便性が高いです。
また、エレベーターがあるため、上層階へのアクセスもスムーズです。
安全面にも配慮されており、個別セキュリティや機械警備が施されていますので、安心してビジネスに専念できます。
さらに、看板スペースも用意されているため、自社のブランディングや集客にも力を入れることができます。
周辺には飲食店やカフェも多く、ランチや打ち合わせ後のリフレッシュに便利です。
買い物の利便性も高く、商業施設が充実しているため、ビジネスだけでなく、生活面でも充実した環境が整っています。
また、在宅勤務が増えている現代において、オフィスとは別に集中できるスペースとしても利用可能です。
「大晋第1ビル」は、業種を問わず多様な用途に適した物件であり、事務所やシェアオフィス、教室、ネイルサロンなど、様々なビジネスシーンに対応しています。
この機会に、ぜひご検討ください。快適なオフィス環境が、あなたのビジネスを次のステージへと導くことでしょう。
興味をお持ちの方は、お気軽にお問い合わせください。
お待ちしております。
Equipment
設備キッチン
洗面設備
設備・サービス
個別空調
その他
エレベーター有・ トイレ 専用・ 給湯室 専用・ 看板スペース・ 個別セキュリティ・ 機械警備
Access
アクセス大阪メトロ御堂筋線「本町」駅まで 徒歩3分
大阪メトロ堺筋線「堺筋本町」駅まで 徒歩5分
大阪メトロ御堂筋線「心斎橋」駅まで 徒歩9分
Property description
物件概要所在地
大阪府大阪市中央区久太郎町3丁目3-5
賃料
253,400円
共益費・管理費
0円
敷礼
敷金0円礼金760,200円(税別)
取引態様
仲介
専有面積
83.76㎡
建物
鉄骨鉄筋コンクリート6階建
築年数
56年
駐車場
バイク置場
駐輪場
電気代・水道代
実費
備考
・火災保険 要加入
・保証会社 要加入











