募集中
【大阪/本町】ワンフロアの店舗・事務所テナント
CoLaBo本町
この物件の情報は「掲載日」時点の内容になります。
お探しの物件の最新の状況は以下ボタンよりお問い合わせお願いします。
お問い合わせ賃料¥165,000円
掲載日2026-01-09
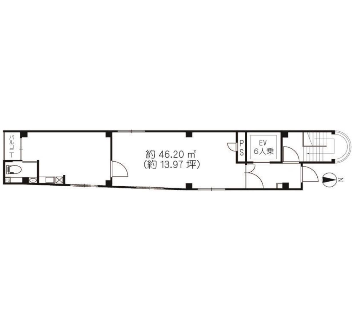
Floor plan
間取り
大阪市中央区平野町に位置する「CoLaBo本町」は、ビジネスの拠点として最適な条件を備えた物件です。
最寄り駅は大阪メトロ御堂筋線の本町駅で、徒歩わずか6分の距離にあります。
徒歩圏内は2沿線利用可能なので、非常に便利です。
この立地は、ビジネス街の中心にあり、アクセスが非常に良好です。
周辺には多くのオフィス、飲食店、コンビニエンスストアがあり、日常の買い物やランチなども便利に行えます。
物件は地上5階建ての4階部分に位置しており、南向きのため明るい日差しが差し込みます。
家賃165,000円で、シェアオフィスや事務所、教室、エステ、ネイル、クリニックなど、さまざまな業種に対応可能です。
1フロアに1テナントの設計となっているため、プライバシーが保たれ、落ち着いて業務を行うことができます。
「CoLaBo本町」の特徴的な設備には、エレベーターが完備されているため、4階へのアクセスもスムーズです。
また、専用トイレと専用の給湯室があり、使い勝手が良い環境が整っています。
専用のミニキッチンも設備として設置されております。
看板スペースも設けられており、自営業やクリニックの方には、集客のための良いアピールポイントとなるでしょう。
加えて、個別空調や個別セキュリティ、機械警備も完備されており、快適かつ安全に仕事を進めることができます。
在宅勤務が普及する中、オフィス環境の選択は重要です。
「CoLaBo本町」は、快適な作業空間を提供するだけでなく、必要な設備が整っているため、在宅勤務とオフィス勤務のハイブリッドスタイルにも適しています。
周囲の環境も整備されており、仕事の合間にリフレッシュできる場所も多くあります。
この物件は、ビジネスの成長を支えるための理想的な場所です。
高い利便性と充実した設備が揃った「CoLaBo本町」で、新たなビジネスのスタートを切ってみてはいかがでしょうか。
ご興味がある方は、是非一度ご内覧はいかがでしょうか?
お問合せをお待ちしております。
最寄り駅は大阪メトロ御堂筋線の本町駅で、徒歩わずか6分の距離にあります。
徒歩圏内は2沿線利用可能なので、非常に便利です。
この立地は、ビジネス街の中心にあり、アクセスが非常に良好です。
周辺には多くのオフィス、飲食店、コンビニエンスストアがあり、日常の買い物やランチなども便利に行えます。
物件は地上5階建ての4階部分に位置しており、南向きのため明るい日差しが差し込みます。
家賃165,000円で、シェアオフィスや事務所、教室、エステ、ネイル、クリニックなど、さまざまな業種に対応可能です。
1フロアに1テナントの設計となっているため、プライバシーが保たれ、落ち着いて業務を行うことができます。
「CoLaBo本町」の特徴的な設備には、エレベーターが完備されているため、4階へのアクセスもスムーズです。
また、専用トイレと専用の給湯室があり、使い勝手が良い環境が整っています。
専用のミニキッチンも設備として設置されております。
看板スペースも設けられており、自営業やクリニックの方には、集客のための良いアピールポイントとなるでしょう。
加えて、個別空調や個別セキュリティ、機械警備も完備されており、快適かつ安全に仕事を進めることができます。
在宅勤務が普及する中、オフィス環境の選択は重要です。
「CoLaBo本町」は、快適な作業空間を提供するだけでなく、必要な設備が整っているため、在宅勤務とオフィス勤務のハイブリッドスタイルにも適しています。
周囲の環境も整備されており、仕事の合間にリフレッシュできる場所も多くあります。
この物件は、ビジネスの成長を支えるための理想的な場所です。
高い利便性と充実した設備が揃った「CoLaBo本町」で、新たなビジネスのスタートを切ってみてはいかがでしょうか。
ご興味がある方は、是非一度ご内覧はいかがでしょうか?
お問合せをお待ちしております。
Equipment
設備キッチン
洗面設備
設備・サービス
個別空調
その他
エレベーター有・ トイレ 専用・ 給湯室 専用・ 看板スペース・ 個別セキュリティ・ 機械警備
Access
アクセス大阪メトロ御堂筋線「本町」駅まで 徒歩6分
大阪メトロ四つ橋線「肥後橋」駅まで 徒歩6分
Property description
物件概要所在地
大阪府大阪市中央区平野町4丁目6-11
賃料
165,000円
共益費・管理費
ー円
敷礼
敷金0円礼金330,000円(税別)
取引態様
仲介
専有面積
46.20㎡
建物
鉄骨造5階建
築年数
20年
駐車場
バイク置場
駐輪場
電気代・水道代
実費
備考











