募集中
【大阪/堀江】堀江公園目の前の新築重飲食可ビル
GONTAX BLD
この物件の情報は「掲載日」時点の内容になります。
お探しの物件の最新の状況は以下ボタンよりお問い合わせお願いします。
お問い合わせ賃料¥418,000円
掲載日2025-04-08
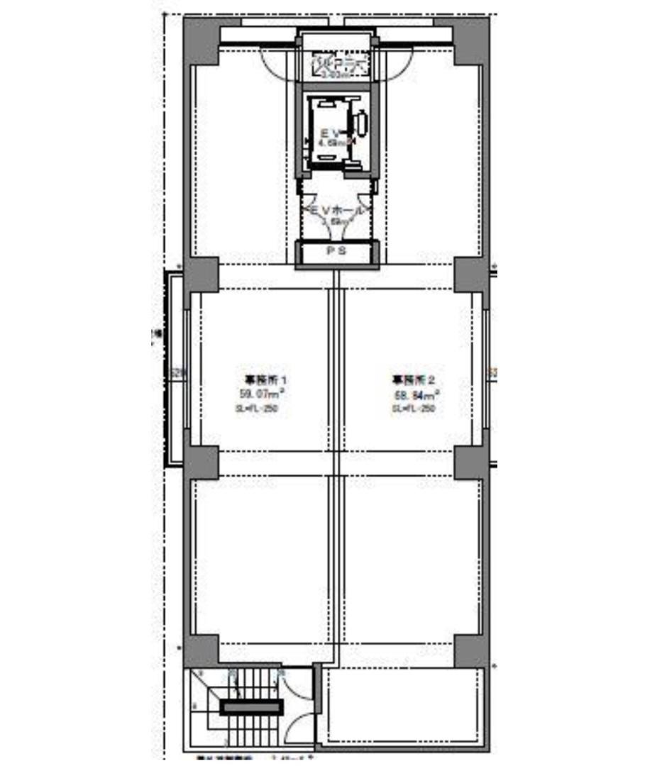
Floor plan
間取り
大阪市西区南堀江に位置する「GONTAX BLD」
ビジネスやクリエイティブ活動に最適な新築のオフィスビルです。最寄り駅は大阪メトロ四つ橋線の「四ツ橋駅」で、徒歩わずか6分の距離にあり、アクセスの良さが魅力です。周辺には多彩な飲食店やショップが立ち並び、ビジネスの合間にリフレッシュできる環境が整っています。
本物件は、ワンフロア2戸となっておりますが、間の壁を抜いてワンフロアでの利用も可能となっております。その際は条件は都度ご相談ください。室内はスケルトン仕様となっています。これにより、入居者は自身のビジネスニーズに合わせた自由なレイアウトが可能です。エアコンは設備として入っておりますので、少し費用は抑えられますね。
業種も多岐にわたり、事務所や教室、ジム、美容室、エステ、ネイル、物販、アパレル、飲食業(重飲食・軽飲食・飲食販売・バー)など、様々な業界に対応できる柔軟性があります。各フロアは1テナントのみの設計で、プライバシーや独自性を保ちつつ、充実したビジネス環境を提供します。
設備面では、エレベーター完備でアクセスも快適。さらに、看板スペースも設けられており、自社のブランディングにも役立ちます。周辺環境は活気にあふれ、商業施設やカフェ、アートギャラリーなどが点在しており、仕事の後や休日に楽しむスポットも豊富です。
在宅勤務が増える中、オフィス環境の快適さは重要です。「GONTAX BLD」は、快適な作業空間を提供し、クリエイティブな発想を促進します。新築のため、内装も新しく、清潔感があります。ビジネスの中心地である南堀江で、オフィスや教室、フィットネス施設など多様な用途に使えるこの物件は、多くの方にとって理想的な選択肢となるでしょう。
ビジネスの成長を後押しする立地と設備を考慮すると、非常に合理的な条件と言えます。ぜひ、この機会に「GONTAX BLD」をご検討ください。あなたのビジネスがさらに発展する場所として、最適な環境が整っています。
お問い合わせお待ちしております。
ビジネスやクリエイティブ活動に最適な新築のオフィスビルです。最寄り駅は大阪メトロ四つ橋線の「四ツ橋駅」で、徒歩わずか6分の距離にあり、アクセスの良さが魅力です。周辺には多彩な飲食店やショップが立ち並び、ビジネスの合間にリフレッシュできる環境が整っています。
本物件は、ワンフロア2戸となっておりますが、間の壁を抜いてワンフロアでの利用も可能となっております。その際は条件は都度ご相談ください。室内はスケルトン仕様となっています。これにより、入居者は自身のビジネスニーズに合わせた自由なレイアウトが可能です。エアコンは設備として入っておりますので、少し費用は抑えられますね。
業種も多岐にわたり、事務所や教室、ジム、美容室、エステ、ネイル、物販、アパレル、飲食業(重飲食・軽飲食・飲食販売・バー)など、様々な業界に対応できる柔軟性があります。各フロアは1テナントのみの設計で、プライバシーや独自性を保ちつつ、充実したビジネス環境を提供します。
設備面では、エレベーター完備でアクセスも快適。さらに、看板スペースも設けられており、自社のブランディングにも役立ちます。周辺環境は活気にあふれ、商業施設やカフェ、アートギャラリーなどが点在しており、仕事の後や休日に楽しむスポットも豊富です。
在宅勤務が増える中、オフィス環境の快適さは重要です。「GONTAX BLD」は、快適な作業空間を提供し、クリエイティブな発想を促進します。新築のため、内装も新しく、清潔感があります。ビジネスの中心地である南堀江で、オフィスや教室、フィットネス施設など多様な用途に使えるこの物件は、多くの方にとって理想的な選択肢となるでしょう。
ビジネスの成長を後押しする立地と設備を考慮すると、非常に合理的な条件と言えます。ぜひ、この機会に「GONTAX BLD」をご検討ください。あなたのビジネスがさらに発展する場所として、最適な環境が整っています。
お問い合わせお待ちしております。
Equipment
設備キッチン
洗面設備
設備・サービス
その他
エレベーター有・ 看板スペース
Access
アクセス大阪メトロ四つ橋線「四ツ橋」駅まで 徒歩6分
Property description
物件概要所在地
大阪府大阪市西区南堀江1丁目14-27
賃料
418,000円
共益費・管理費
ー円
敷礼
敷金100,000円礼金627,000円(税別)
取引態様
仲介
専有面積
59.07㎡
建物
RC8階建
築年数
10ヶ月
駐車場
バイク置場
駐輪場
電気代・水道代
実費
備考
・保証会社 要加入








