募集中
【大阪/心斎橋】長堀通に面したガラス張りテナントビル
ACN心斎橋ビル
この物件の情報は「掲載日」時点の内容になります。
お探しの物件の最新の状況は以下ボタンよりお問い合わせお願いします。
お問い合わせ賃料¥1,509,120円
掲載日2026-02-06
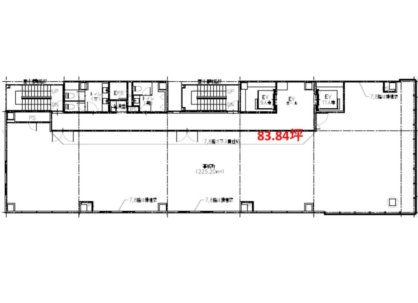
Floor plan
間取り
ACN心斎橋ビルは大阪メトロ四つ橋線「四ツ橋」駅から徒歩1分という好立地に位置する、10階建てのビルです。大阪府大阪市中央区南船場にあるこの物件は、オフィス街でもあり、周辺にはさまざまな業種の事務所が多数存在しています。そのため、事務所物件としてだけでなく、教室、美容室、エステ、物販、アパレル、クリニックなど多様な業種のお店にも適しています。
この物件は、エントランスには防犯カメラが設置され、エレベーターがあります。また、1フロアに1テナントしか入居できないため、プライバシーが守られ、安全性も高いです。さらに、個別空調やトイレ、給湯室の共用も可能であり、快適で利便性の高い生活を送ることができます。
ACN心斎橋ビルの近くには、数多くの飲食店やコンビニエンスストアがあります。また、南船場には高級ブランド店が立ち並ぶエリアも近く、ランチを食べるだけでなく、ショッピングを楽しむこともできます。さらに、駅直結の大型ショッピングモールも徒歩圏内にあり、充実したお買い物ができることも魅力の一つです。
また、設備面に関しても充実しており、快適な生活をサポートしてくれます。事務所で働く方が多く利用されることを考慮して、トイレや給湯室の共用設備が整っているので、備品を持ち運ぶ必要がありません。また、個別空調が完備されているため、四季折々の気温にも応じて快適な環境を保つことができます。
そして、現在、世の中では在宅勤務のニーズが高まっていますが、ACN心斎橋ビルでは設備や環境が整っているため、在宅勤務にも適した物件です。快適な個別空調やオフィス街に位置しているため、他の住宅街に比べて静かで落ち着いた環境での在宅勤務が可能です。また、オフィス街に位置しているので、気軽にランチやコーヒーを買いに外出することができ、リフレッシュすることもできます。
さらに、交通の便にも恵まれています。大阪メトロ四つ橋線「四ツ橋」駅からは、大阪の各駅や主要なスポットへ乗り換えなしでアクセスすることができます。また、近隣には多数のバス停もあり、ビジネスの移動手段としても便利です。
その他、築浅であるため、室内は清潔感があり、明るく快適な居住空間となっています。是非、お客様のさまざまなニーズに合わせてご利用いただけるACN心斎橋ビルをご検討ください。
お問い合わせお待ちしております。
この物件は、エントランスには防犯カメラが設置され、エレベーターがあります。また、1フロアに1テナントしか入居できないため、プライバシーが守られ、安全性も高いです。さらに、個別空調やトイレ、給湯室の共用も可能であり、快適で利便性の高い生活を送ることができます。
ACN心斎橋ビルの近くには、数多くの飲食店やコンビニエンスストアがあります。また、南船場には高級ブランド店が立ち並ぶエリアも近く、ランチを食べるだけでなく、ショッピングを楽しむこともできます。さらに、駅直結の大型ショッピングモールも徒歩圏内にあり、充実したお買い物ができることも魅力の一つです。
また、設備面に関しても充実しており、快適な生活をサポートしてくれます。事務所で働く方が多く利用されることを考慮して、トイレや給湯室の共用設備が整っているので、備品を持ち運ぶ必要がありません。また、個別空調が完備されているため、四季折々の気温にも応じて快適な環境を保つことができます。
そして、現在、世の中では在宅勤務のニーズが高まっていますが、ACN心斎橋ビルでは設備や環境が整っているため、在宅勤務にも適した物件です。快適な個別空調やオフィス街に位置しているため、他の住宅街に比べて静かで落ち着いた環境での在宅勤務が可能です。また、オフィス街に位置しているので、気軽にランチやコーヒーを買いに外出することができ、リフレッシュすることもできます。
さらに、交通の便にも恵まれています。大阪メトロ四つ橋線「四ツ橋」駅からは、大阪の各駅や主要なスポットへ乗り換えなしでアクセスすることができます。また、近隣には多数のバス停もあり、ビジネスの移動手段としても便利です。
その他、築浅であるため、室内は清潔感があり、明るく快適な居住空間となっています。是非、お客様のさまざまなニーズに合わせてご利用いただけるACN心斎橋ビルをご検討ください。
お問い合わせお待ちしております。
Equipment
設備キッチン
洗面設備
設備・サービス
個別空調
その他
防犯カメラ・ エレベーター有・ トイレ 共用・ 給湯室 共用
Access
アクセス大阪メトロ四つ橋線「四ツ橋」駅まで 徒歩1分
Property description
物件概要所在地
大阪府大阪市中央区南船場4丁目12-10
賃料
1,509,120円
共益費・管理費
ー円
敷礼
敷金12,072,960円礼金ー円(税別)
取引態様
ー
専有面積
277.16㎡
建物
鉄骨造10階建
築年数
12年
駐車場
バイク置場
駐輪場
電気代・水道代
実費
備考








