募集中
【大阪/十三】新築路面店舗。給排水にガス設備・駐車場有
facile voieur
この物件の情報は「掲載日」時点の内容になります。
お探しの物件の最新の状況は以下ボタンよりお問い合わせお願いします。
お問い合わせ賃料¥616,000円
掲載日2026-02-06
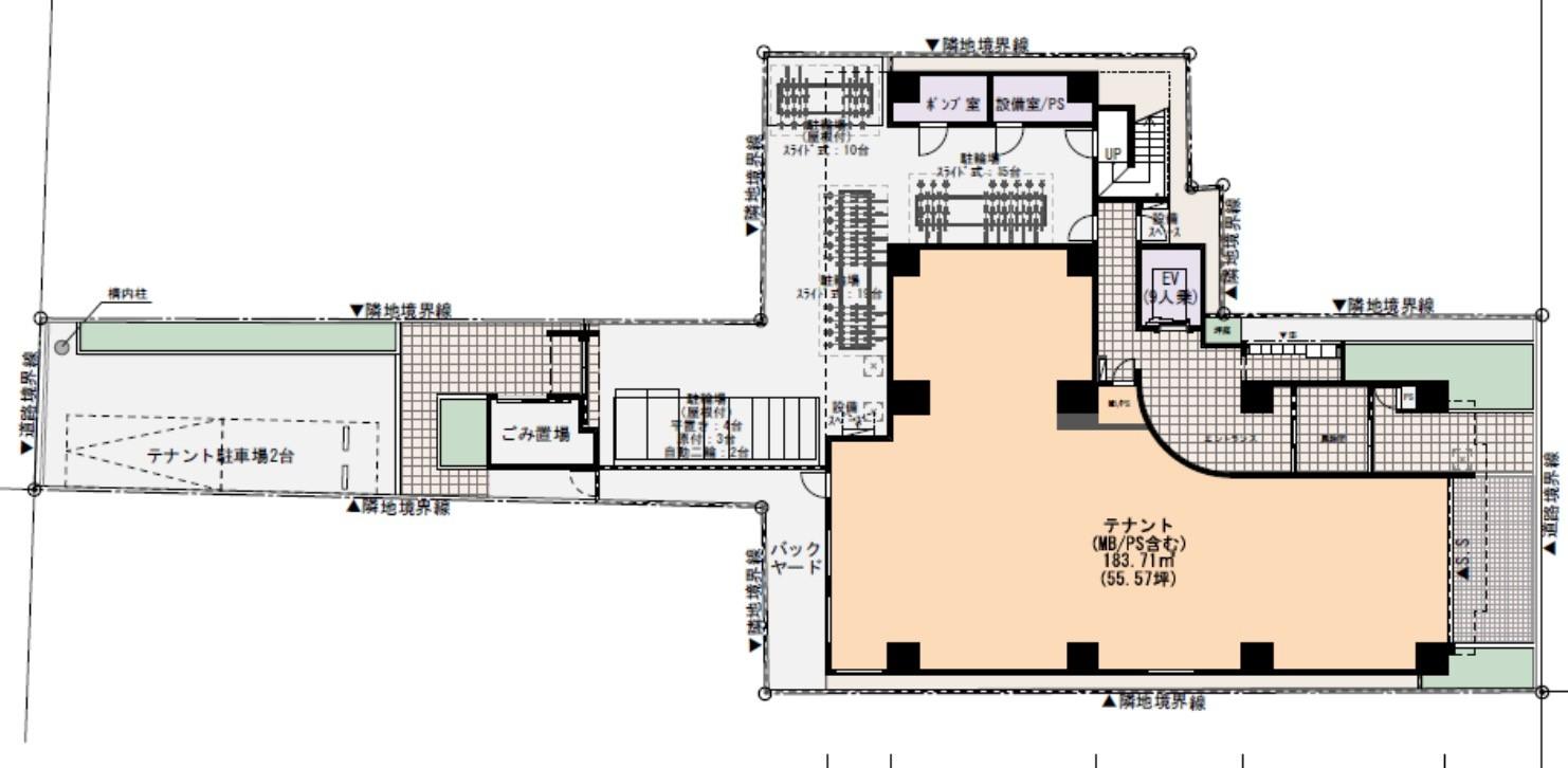
Floor plan
間取り
十三に位置する「facile voieur」は、高級感と快適性を備えた賃貸マンションの路面店舗区画。駅徒歩5分という好立地に加え、阪急神戸本線の十三駅からアクセス可能です。多彩な業種が入居可能で、事務所や店舗としても利用できる事務所可能物件です。1フロア1テナントのスケルトンの空間を活用して、理想の店舗を作ることができます。
教室やジム、美容室やエステ、ネイルサロンなど、様々な業種が入居可能です。また、物販やアパレル、軽飲食や飲食販売などの業種にも最適です。幅広い業種が入居できることで、さまざまなニーズに応えることができます。
スケルトンで少し初期費用がかかってしまいますが、理想の店舗を作ることができいいですね◎
物件の周辺環境も魅力の一つです。大阪市淀川区に位置し、交通の便が良いだけでなく、周辺には商業施設やマスコットキャラクターの「十三くん」がいる公園など、生活に便利で楽しい場所が豊富に揃っています。また、スーパーやコンビニ、ドラッグストア、銀行なども近隣にあり、買い物にも便利です。さらに、十三駅からは大阪駅までのアクセスが約10分、梅田駅まで約15分と、ビジネスや観光などでの移動もスムーズに行えます。
物件内の設備も充実しています。駐車場を完備しているので、通勤や外出時にも便利です。また、住居として利用する場合にも、車を持つ方やバイクを利用する方にとっては、大変魅力的な要素となるでしょう。
新築の物件なので、生活を始めるのに不安なく、さっと暮らしを始められます。室内には最新の設備が整っており、インターネット環境も整っているため、在宅勤務の方にも最適です。また、スケルトンの空間を利用して生活空間を作ることができるので、自分らしく生活することが可能です。光がたくさん入り、風が通り抜け、自然に囲まれた生活を送ることができます。
創業者やオフィスを構える方々の豊かな人生を実現するために、理想の空間を提供します。快適な生活空間を求める方や多様な業種から応募があることも魅力的です。是非一度、見学にお越しください。あなたのビジネスの可能性を広げる貴重な資産となること間違いありません。
お問い合わせを心よりお待ちしております。
教室やジム、美容室やエステ、ネイルサロンなど、様々な業種が入居可能です。また、物販やアパレル、軽飲食や飲食販売などの業種にも最適です。幅広い業種が入居できることで、さまざまなニーズに応えることができます。
スケルトンで少し初期費用がかかってしまいますが、理想の店舗を作ることができいいですね◎
物件の周辺環境も魅力の一つです。大阪市淀川区に位置し、交通の便が良いだけでなく、周辺には商業施設やマスコットキャラクターの「十三くん」がいる公園など、生活に便利で楽しい場所が豊富に揃っています。また、スーパーやコンビニ、ドラッグストア、銀行なども近隣にあり、買い物にも便利です。さらに、十三駅からは大阪駅までのアクセスが約10分、梅田駅まで約15分と、ビジネスや観光などでの移動もスムーズに行えます。
物件内の設備も充実しています。駐車場を完備しているので、通勤や外出時にも便利です。また、住居として利用する場合にも、車を持つ方やバイクを利用する方にとっては、大変魅力的な要素となるでしょう。
新築の物件なので、生活を始めるのに不安なく、さっと暮らしを始められます。室内には最新の設備が整っており、インターネット環境も整っているため、在宅勤務の方にも最適です。また、スケルトンの空間を利用して生活空間を作ることができるので、自分らしく生活することが可能です。光がたくさん入り、風が通り抜け、自然に囲まれた生活を送ることができます。
創業者やオフィスを構える方々の豊かな人生を実現するために、理想の空間を提供します。快適な生活空間を求める方や多様な業種から応募があることも魅力的です。是非一度、見学にお越しください。あなたのビジネスの可能性を広げる貴重な資産となること間違いありません。
お問い合わせを心よりお待ちしております。
Equipment
設備キッチン
洗面設備
設備・サービス
その他
駐車場
Access
アクセス阪急神戸本線「十三」駅まで 徒歩5分
阪急神戸本線「大阪梅田」駅まで 徒歩31分
JR神戸線(大阪~神戸)「塚本」駅まで 徒歩18分
Property description
物件概要所在地
大阪府大阪市淀川区十三本町1丁目17-24
賃料
616,000円
共益費・管理費
ー円
敷礼
敷金ー円礼金616,000円(税別)
取引態様
ー
専有面積
186.88㎡
建物
鉄筋コンクリート造9階建
築年数
2年
駐車場
あり
バイク置場
駐輪場
電気代・水道代
実費
備考









